第十五章 部品部件的装饰装修构造图
一、门
门的主要作用是联系交通、分隔空间,同时还有装饰建筑立面的作用。门是围护构件,除了满足基本使用要求外,还应具有保温、隔热、隔音、防护等功能。室内门按种类可分为:木门、金属门、玻璃门、织物硬(软)包门等;按开启方式可分为:平开门、推拉门、折叠门、地弹簧门等。
门洞口尺寸应符合《建筑门窗洞口尺寸系列》(GB/T 5824-2008)的规定。门的构造尺寸可根据门洞口饰面材料、附框尺寸、安装缝隙确定。门扇的厚度分为 40 mm、45 mm、50 mm、55 mm、60 mm 等,门框套厚度根据墙厚确定。木质门的防火等级、含水率、甲醛释放量应符合国家相关规范和设计要求。玻璃应根据使用要求适当选取,需采用安全玻璃。
门的一般尺寸:在居住建筑中室内门的宽度为 800 ~ 1000 mm, 双 扇 门 为 1200 ~ 1400 mm。门的高度多数在 2000 ~ 2200 mm 之间,有亮子(腰头窗) 的 侧 高 度 需 增 加 300 ~ 500 mm。在公共建筑中,室内门的宽度为:单扇门为 950 ~ 1100 mm, 双扇门为1400 ~ 1800 mm。门的高度为:2100 ~ 2400 mm, 室内带亮子的应增加 500 ~ 700 mm。四扇玻璃外门宽为 2500 ~ 3200 mm,高可视立面造型与房高而定。

图1 门的构成
二、窗
窗是装设在墙洞中可启闭的建筑构件,是围护构件,其主要作用是采光、通风、眺望,同时还有装饰建筑立面的作用。除了满足基本使用要求外,窗还应具有保温、隔热、隔音、防护等功能。
窗有不同的种类,按开启方式分,主要有平开窗、推拉窗、悬窗(翻窗)、百叶窗、固定窗;按所用材料分主要有:木窗、金属窗、玻璃窗;按功能分主要有:防盗窗、防火窗、防生窗、密闭窗等。
窗通常由窗框(由上槛、下槛、边框、中横框等组成)和窗扇(由上冒头、下冒头、窗芯玻璃等)组成。
通常,平开窗单扇宽不大于 600 mm,双扇宽度 900 ~ 1200 mm,三扇窗宽 1500 ~ 1800 mm,高度一般为 1500 ~ 2100 mm,窗台离地高度为 900 ~ 1000 mm。推拉 窗宽不大于 1500 mm,旋转窗的宽度、高度不宜大于 1000 mm,超过时需设中竖框和中横框,窗台高度可适当提高,约在 1200 mm 左右。窗台高度在 600 mm 以下,应设护栏。

图2 窗的构成
三、柜类家具
柜类家具主要用于储存物品,归类家具,可分为三种构造形式:框架构造式、板式构造式、金属框架构造式。
因在装饰装修中,大多数的柜类家具都已采用成品定制的方式,现场制作家具的可能性不大,故本部分不做赘述。
四、卫生洁具
卫生洁具包括:大便器、小便器、洗面器、净身器、浴缸、淋浴房等。
蹲便器按冲洗方式可分为:冲洗阀式、水箱式(高水箱、背水箱)。冲洗阀式和水箱式又有明装、暗装之分,手动式与感应式之分。坐便器按产品可分为:分体坐便器、连体坐便器、智能全自动电子坐便器、后排污坐便器与下排污坐便器、直冲式坐便器与虹吸式坐便器。
小便器按产品可分为:壁挂式小便器、立式小便器、感应式自动冲洗小便器与手动冲洗阀式小便器。
洗面器按产品可分为:台式洗面器、立柱式洗面器、壁挂式洗面器。
净身器按产品可分为:直喷式和下喷水式两大类。
浴缸按产品可分为:独立浴缸、有裙边浴缸、无裙边浴缸、气泡按摩浴缸(有裙边、无裙边)。
淋浴房按产品可分为:转角形淋浴房、一字形浴屏、圆弧形淋浴房、浴缸上浴屏等。
桑拿房按产品可分为:芬兰浴、土耳其浴、韩式汗蒸等。
水暖五金配件分为:上下水管件、水龙头、阀门、地漏。大部分五金配件以部品的形式结合在卫浴洁具中。
卫浴五金配件分为:扶手杆、无障碍助力器、手纸箱、挂钩、毛巾杆、毛巾环、浴巾架、肥皂架、皂液器、卷纸器、烘手器、儿童椅、婴儿用更衣台等。
第一节 室内门的装饰装修构造

图 15-1-1 单扇平开门(一)三维图(实体墙)

图 15-1-2 单扇平开门(一)门扇立面图

图 15-1-3 单扇平开门(一)内部构造图

图 15-1-4 单扇平开门(一)构造节点图(实体墙)

图 15-1-5 单扇平开门(二)三维图(轻钢龙骨隔墙)

图 15-1-6 单扇平开门(二)门扇立面图

图 15-1-7 单扇平开门(二)内部构造图

图 15-1-8 单扇平开门(二)构造节点图(轻钢龙骨隔墙)

图 15-1-9 单扇平开门(一)竖向构造节点图(实墙体)

图 15-1-10 单扇平开门(二)竖向构造节点图(轻钢龙骨隔墙)

图 15-1-11 单扇平开门(一)门套构造节点图(实墙体)

图 15-1-12 单扇平开门(二)门套构造节点图(轻钢龙骨隔墙)

图 15-1-13 双扇移门三维图

图 15-1-14 双扇移门构造节点图

图 15-1-15 移门立面图

图 15-1-16 移门吊轨构造节点图

图 15-1-17 单扇隐形门三维图

图 15-1-18 单扇隐形门横向构造节点图

图 15-1-19 单扇隐形门竖向构造节点图

图 15-1-20 单扇隔声门三维图

图 15-1-21 单扇隔声门横向构造节点图

图 15-1-22 单扇隔声门竖向构造节点图

图 15-1-23 双层隔声门三维图

图 15-1-24 双层隔声门横向构造节点图

图 15-1-25 双层隔声门竖向构造节点图

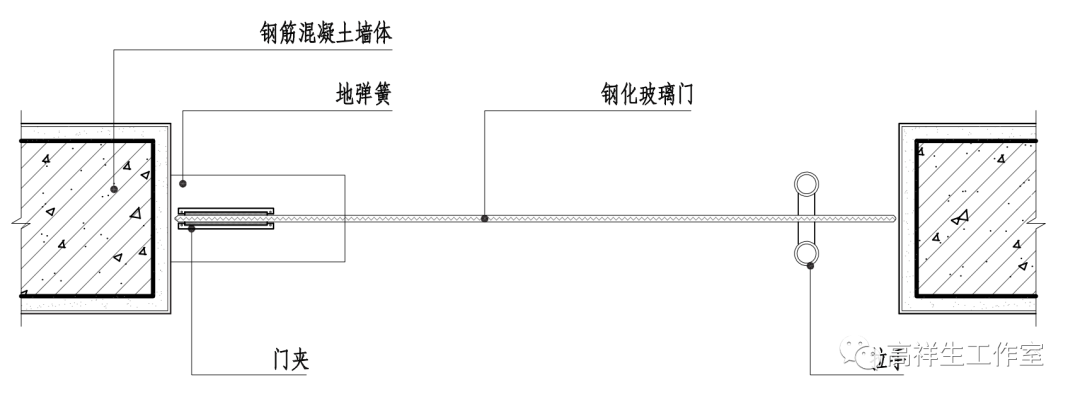
图 15-1-26 玻璃平开门三维图

图 15-1-27 玻璃平开门横向构造节点图

图 15-1-28 玻璃平开门竖向构造节点图
第二节 窗套构造

图 15-2-1 木质窗台(一)三维图

图 15-2-2 木质窗台(一)局部大样图

图 15-2-3 木质窗台(一)竖向构造节点图

图 15-2-4 木质窗台(一)横向构造节点图

图 15-2-5 木质窗台(二)三维图

图 15-2-6 木质窗台(二)局部大样图

图 15-2-7 木质窗台(二)竖向构造节点图

图 15-2-8 木质窗台(二)横向构造节点图

图 15-2-9 墙砖窗台三维图

图 15-2-10 墙砖窗台局部大样图

图 15-2-11 墙砖窗台竖向构造节点图

图 15-2-12 墙砖窗台横向构造节点图

图 15-2-13 石材窗台(一)三维图

图 15-2-14 石材窗台(一)局部大样图

图 15-2-15 石材窗台(一)竖向构造节点图

图 15-2-16 石材窗台(一)横向构造节点图

图 15-2-17 石材窗台(二)三维图

图 15-2-18 石材窗台(二)局部大样图

图 15-2-19 石材窗台(二)竖向构造节点图

图 15-2-20 石材窗台(二)横向构造节点图
第三节 固定家具的装饰装修构造

图 15-3-1 装饰柜三维图

图 15-3-2 装饰柜层板构造节点图

图 15-3-3 装饰柜竖向构造节点图

图 15-3-4 装饰柜构造节点图

图 15-3-5 装饰柜正立面图

图 15-3-6 浴缸三维图

图 15-3-7 浴缸构造节点图
第四节 厨房、卫生间的装饰装修构造

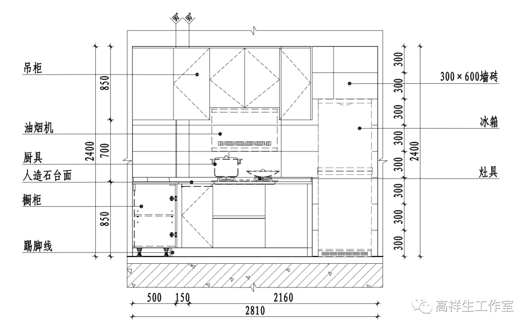
图 15-4-1 厨房三维图

图 15-4-2 厨房平面图

图 15-4-3 厨房立面图(一)

图 15-4-4 厨房竖向构造节点图

图 15-4-5 厨房立面图(二)

图 15-4-6 壁挂坐便器构造节点图

图 15-4-7 壁挂坐便器三维图

图 15-4-8 蹲坑后侧墙面竖向构造节点图

图 15-4-9 蹲坑墙面三维图

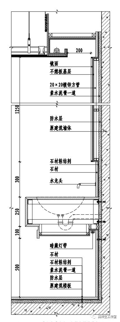
图 15-4-10 成人洗手池(一)竖向构造节点图

图 15-4-11 成人洗手池(二)竖向构造节点图

图 15-4-12 成人洗手池(一)三维图

图 15-4-13 成人洗手池(二)三维图
第五节 壁炉的装饰装修构造

图 15-5-1 壁炉三维图

图 15-5-2 壁炉纵向构造节点图

图 15-5-3 壁炉立面图
第六节 衣柜的装饰装修构造

图 15-6-1 步入式衣帽间平面图

图 15-6-2 步入式衣帽间三维图

图 15-6-3 步入式衣帽间立面图

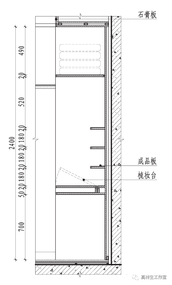
图 15-6-4 衣柜竖向构造节点图(一)

图 15-6-5 衣柜竖向构造节点图(二)
